嵯峨美術大学生 女性専用
嵯峨苅分町シェアハウス1
嵐電「車折神社」から約10分ほど歩いたところにあるシェアハウスです。
嵯峨美術大学までは徒歩12分と、通学にはとても便利です。
近くにはスーパーやコンビニもあり、お買い物も楽々!
内覧もして頂けますので、お気軽にお問い合わせ下さいませ!
嵯峨美術大学までは徒歩12分と、通学にはとても便利です。
近くにはスーパーやコンビニもあり、お買い物も楽々!
内覧もして頂けますので、お気軽にお問い合わせ下さいませ!
嵯峨苅分町シェアハウス1
〒606-8226 京都府京都市右京区嵯峨苅分町12
嵐電「車折神社」徒歩5分
洗濯機:コインランドリー2台
インターネット:Wi-Fi
エレベーター:無し
設備
共有スペース
| キッチン | 2口IHクッキングヒーター1台、電子レンジ、トースター、炊飯器、掃除機 |
|---|---|
| ダイニング | ダイニングテーブル、テレビ、テレビ台 |
| シャワー・トイレ | シャワールーム4台、トイレ4台、洗面4台 |
| その他 | コインランドリー(1回200円)各階1台ずつ |
個室
エアコン、冷蔵庫、机、椅子、ハンガーラック、カーテン、ゴミ箱、二段ベッド
※寝具はご自分でご用意くださいませ。
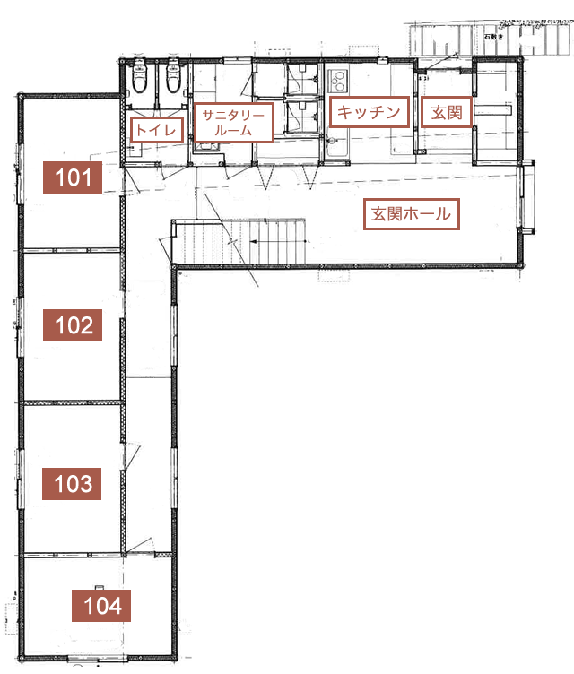
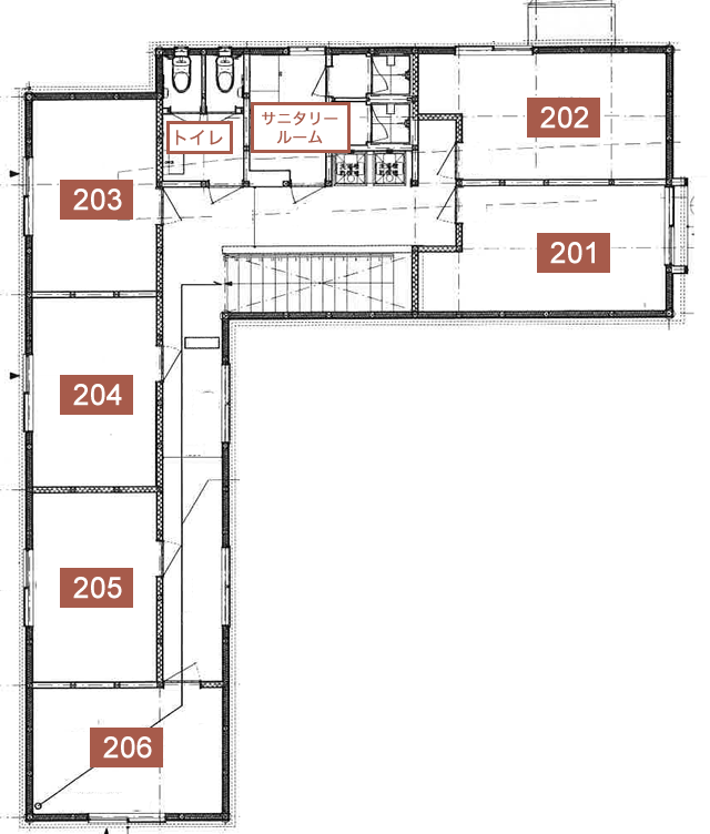
間取り
1F
2F
部屋情報
| 部屋番号 | 部屋タイプ | 部屋サイズ | 家賃月額 | 空室状況 |
|---|---|---|---|---|
| 101 | 洋室 | 11.18(㎡) | ¥29,000 | 空室 |
| 102 | 洋室 | 11.18(㎡) | ¥29,000 | 空室 |
| 103 | 洋室 | 11.18(㎡) | ¥29,000 | 空室 |
| 104 | 洋室 | 11.18(㎡) | ¥29,000 | 空室 |
| 201 | 洋室 | 11.18(㎡) | ¥29,000 | 空室 |
| 202 | 洋室 | 11.18(㎡) | ¥29,000 | 空室 |
| 203 | 洋室 | 11.18(㎡) | ¥29,000 | 空室 |
| 204 | 洋室 | 11.18(㎡) | ¥29,000 | 空室 |
| 205 | 洋室 | 11.18(㎡) | ¥29,000 | 空室 |
| 206 | 洋室 | 11.18(㎡) | ¥29,000 | 空室 |
おすすめポイント
リーズナブル
- 初期費用は保証金30,000円と家賃1か月分のみ。敷金礼金は不要。
- 家賃は光熱費とインターネット料金、共益費、水道代も含まれて29,000円
- 契約更新時の料金も発生しないので、ご安心ください。
手続きが簡単でスピーディ
お部屋が空いていれば、下記のものだけで即日入居可能。
- パスポートなどの本人確認書類
- 保証金30,000円
- 家賃1か月分
賃貸物件で必要な連帯保証人、電気、ガス、インターネットの申し込み不要。
その他の複雑な手続きは必要ありません。退去は3週間前に申請すればOKです。
スタッフが全員女性
女性ならではのきめ細やかで丁寧な対応をいたします。
管理会社
京都アパートメント
| 所在地 | 〒604-8811
京都府京都市中京区壬生賀陽御所町77-1 近庄ビル2階 (事務所へお立ち寄りの際は、必ず事前にご連絡ください。入退去対応中は京都アパートメントスタッフが不在の可能性がございます。) |
|---|---|
| TEL&FAX | TEL 075-812-8776 / FAX 075-811-5550 |
| info@kyoto-apartment.com | |
| URL | www.kyoto-apartment.com |
本社情報
| 商号 | 株式会社近庄 |
|---|---|
| 本社所在地 | 京都府京都市中京区壬生賀陽御所町77-1 |
| 連絡先 | TEL 075-813-5777 / FAX 075-811-5550 |
| 設立年度 | 嘉永元年(1848年) |
| 資本金 | 2,000万円 |
| URL | http://www.yamasyo.net/kinsyo/ |
お知らせ
-
webfookのテスト
-
microCMSはAPIベースの日本製ヘッドレスCMSです。 快適な管理画面により、開発・運用コストを大きく削減することで、ビジネスを加速させます。
-
芦生の森はトチの季節がおわり、秋へと移りつつあります。 朝晩の寒暖差も大きくなり、徐々に秋が深まってきています。
-
権現山・ホッケ山・蓬莱山
-
おにゅう峠と百里ヶ岳